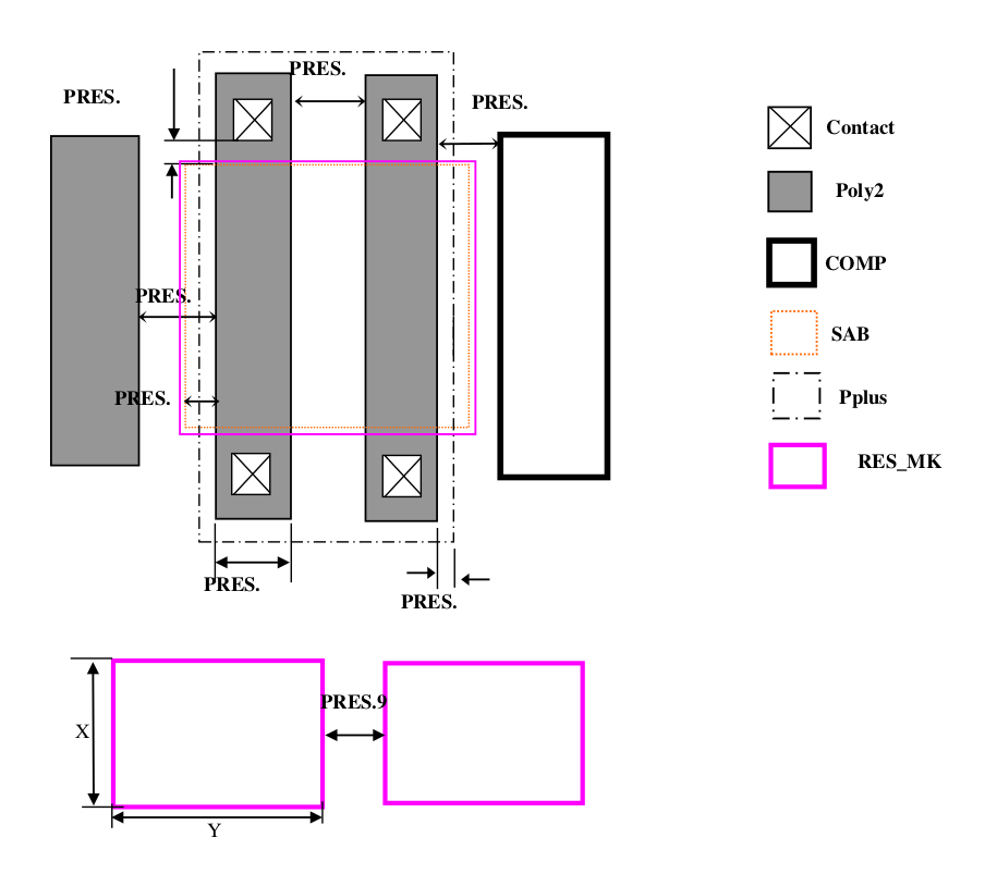
10.1 P+ Poly Resistor (PRES)¶
This section defines the rules for Un-salicide P+ poly resistors. This uses P+ source drain implant to realize P+ poly resistor and does not require any additional processing step if SAB layer is present in the process. Here resistor width is determined by Poly2 width and the resistor length is determined by SAB layer.
RULE NO.  | 
DESCRIPTION  | 
Rule  | 
PRES.1  | 
Minimum width of Poly2 resistor  | 
0.8  | 
PRES.2  | 
Minimum space between Poly2 resistors  | 
0.4  | 
PRES.3  | 
Minimum space from Poly2 resistor to COMP  | 
0.6  | 
PRES.4  | 
Minimum space from Poly2 resistor to unrelated Poly2  | 
0.6  | 
PRES.5  | 
Minimum Plus implant overlap of Poly2 resistor  | 
0.3  | 
PRES.6  | 
Minimum salicide block overlap of Poly2 resistor in width direction  | 
0.28  | 
PRES.7  | 
Space from salicide block to contact on Poly2 resistor  | 
0.22  | 
PRES.8*  | 
Maximum current density of Poly2 resistor (mA/um)  | 
1  | 
PRES.9  | 
Pplus Poly2 resistor shall be covered by RES_MK marking. RES_MK length shall be coincide with resistor length (Defined by SAB length) and width covering the width of Poly2. If the size of single RES_MK mark layer is greater than 15000um2 and both side (X and Y) are greater than 80um. then the minimum spacing to adjacent RES_MK layer  | 
20  | 
Note